Многокомнатная квартира 341,63 м2 по ул. Захарьевская 41 литер А за 346630000 руб.

Многокомнатная квартира по ул. Захарьевская, 41 литер А в Санкт-Петербурге
Цена 346 630 000 р. (1 014 636 р./м2)
Подать заявку на ипотеку
Адрес Захарьевская, 41 литер А
Этаж 2/6
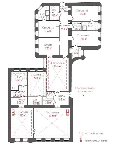
Площадь общая 341,63 м2, жилая 178,21 м2, кухни 17,35 м2
Кол-во комнат Многокомнатная
Роскошная резиденция, площадью 355,8 кв.м.: лепной декор, изразцовая печь, камин, скульптурные композиции, высокие потолки 3,78 м. Резиденция с эркером на Таврический сад! Клубный дом «Три Грации» – великолепный архитектурный памятник Санкт-Петербурга с богатейшей историей, расположенный напротив Таврического сада в окружении объектов всемирного наследия. Клубный дом построен в сердце Северной столицы – на пересечении Захарьевской и Потемкинской улиц напротив Таврического сада. «Три Грации» - это всего 23 представительских резиденции. В доме предусмотрена Служба портье, работающая по самым высоким стандартам сервиса. Сотрудники выполнят любые поручения жителей: от организации уборки квартиры до международного трансфера на личном самолете. Уютный благоустроенный двор-атриум с ландшафтным дизайном и навесами от непогоды, приватный спортивный клуб, салон красоты, переговорная комната, ресторан высокой кухни с винным погребом, частные кладовые, холодильная камера для хранения меховых изделий. Это действительно объект трофейной недвижимости! Звоните и мы проведем показ в любое удобное для Вас время!
Описание дома
Этажность дома 6
Объявление № 23164113
Дата подачи:
22 августа 2025 г. 8:27
Дата обновления:
14 октября 2025 г. 5:20
Просмотров 9 Хотите продать быстрее?

Продавец
Отдел продаж
Показать номер телефона
Пожаловаться
Комментарии:
Добавить